Baerz & Co is een landelijk samenwerkingsverband van zorgvuldig geselecteerde boutique luxury makelaars. Samen vormen wij één netwerk, met één gedeeld aanbod. De woningen die u op onze website ziet, zijn afkomstig van alle aangesloten kantoren binnen Baerz & Co. Daardoor is niet ieder object rechtstreeks door ons kantoor in verkoop, maar door een gespecialiseerde collega binnen ons netwerk. Heeft u een woning gevonden die u aanspreekt en wilt u meer informatie? Dan brengen wij u graag persoonlijk in contact met de betreffende verkoopmakelaar, zodat u direct en zorgvuldig wordt begeleid.

'S-HERTOGENBOSCH
Brede Haven 38 - 5211 TM
Netherlands

Eric Tiebosch profile image
Eric Tiebosch
Owner / Real Estate Agent
€1,000,000 k.k.
Living Area
132m2
Plot Size
53m2
Bedrooms
2

Description

A charming townhouse in one of the most picturesque locations in the historic city centre of ’s-Hertogenbosch. Situated on the highly sought-after Brede Haven, this unique home offers beautiful water views at both the front and the rear, combining historic charm with modern comfort.

Living here means enjoying a peaceful waterfront setting while being just a short walk from shops, restaurants, cafés and the central train station.

Unique waterfront living
Brede Haven is famous for its elegant historic buildings and vibrant atmosphere along the harbour. From the living areas at the front of the house you enjoy views over the water and the lively quay, while the rear of the house overlooks the Dommel river, where boats and paddleboarders quietly pass by. This rare double waterfront position provides sunlight and beautiful views throughout the day.

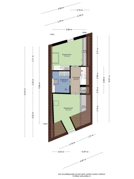
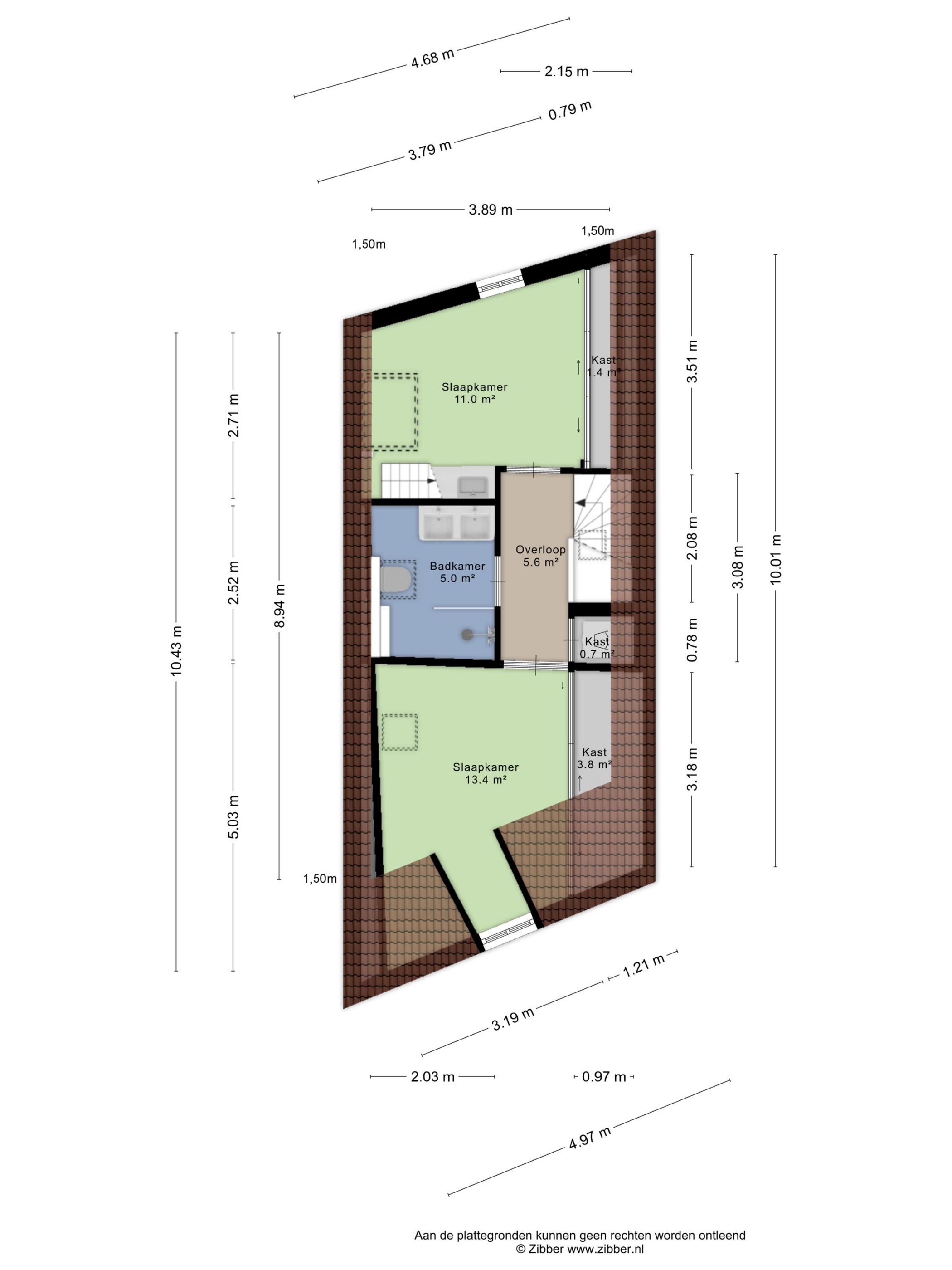
Layout

Ground floor
Entrance through a characteristic front door into the hallway. At the front of the house is the kitchen with a large window overlooking the harbour. At the rear you will find the dining room – a cosy space ideal for long dinners and entertaining guests. Behind the dining room is a spacious storage room.

Split level / intermediate floor
This level features a comfortable home office with views over the Brede Haven. There is also a separate toilet and access to the internal garage.

Internal garage
A rare feature in the historic city centre. The garage is accessible from the Buitenhaven and offers space for a car, bicycles and storage. The space could also be used as a studio, workspace or office with its own entrance.

First living floor
The main living room is bright and spacious and enjoys beautiful views over the harbour. At the rear there is an additional sitting room with views over the Dommel and the evening sun – a perfect place to relax.

Top floor
The upper floor features two bedrooms. The main bedroom is located at the front under the roof and has a charming atmosphere thanks to the high ceiling and dormer window. The second bedroom is also spacious and versatile.

The bathroom was fully renovated in 2024 and includes a walk-in shower, double washbasin, toilet and designer radiator.

Key features

Prime location on Brede Haven

Waterfront views at both the front and rear

Internal garage in the city centre

Living area approx. 132 m²

Volume approx. 551 m³

Plot size approx. 53 m²

Rebuilt in 1979 with preserved historic façade

Energy label C

Central heating boiler (2013)

Bathroom renovated in 2024

In summary
A unique opportunity to live on one of the most desirable waterfront streets in ’s-Hertogenbosch. A characterful townhouse with space, comfort and beautiful views in the heart of the city.

Features

Transfer of ownership
Asking Price
€ 1.000.000 k.k.
Status
beschikbaar
Acceptance
in overleg
Construction
Kind of house
Grachtenpand
Building type
tussenwoning
Construction period
1979
Energy rating
C
Roof type
schilddak
Bedrooms
2
Bathrooms
1
Surface Areas And Volume
Living Area
132 m2
Other indoor space
24 m2
Volume in cubic meters
551 m3
Plot Size
53 m2
Facilities
Mechanische ventilatie
Dakraam
Aan water
In centrum
Baerz & Co Property Brochure

Brochure

Floor Plans

De Huyzerij Makelaardij

Kruisstraat 2
5211 DV 's-Hertogenbosch

info@dehuyzerij.nl
+31 736122225

www.dehuyzerij.nl

Information / Viewing request

Eric Tiebosch profile image
Eric Tiebosch
Owner / Real Estate Agent

Buying a Luxury Property in 's-Hertogenbosch

's-Hertogenbosch offers a refined blend of history, culture, and contemporary living, attracting a globally minded community who value privacy, aesthetics, and seamless services within a vibrant, authentic Dutch environment.