Baerz & Co is een landelijk samenwerkingsverband van zorgvuldig geselecteerde boutique luxury makelaars. Samen vormen wij één netwerk, met één gedeeld aanbod. De woningen die u op onze website ziet, zijn afkomstig van alle aangesloten kantoren binnen Baerz & Co. Daardoor is niet ieder object rechtstreeks door ons kantoor in verkoop, maar door een gespecialiseerde collega binnen ons netwerk. Heeft u een woning gevonden die u aanspreekt en wilt u meer informatie? Dan brengen wij u graag persoonlijk in contact met de betreffende verkoopmakelaar, zodat u direct en zorgvuldig wordt begeleid.

AMSTERDAM
Koninginneweg 164 D - 1075 EG
Netherlands

Eran Hausel profile image
Eran Hausel
Real estate agent
€1,050,000 k.k.
Living Area
88m2
Plot Size
N/A
Bedrooms
2

Description

Koninginneweg 164 D, 1075 EG AMSTERDAM

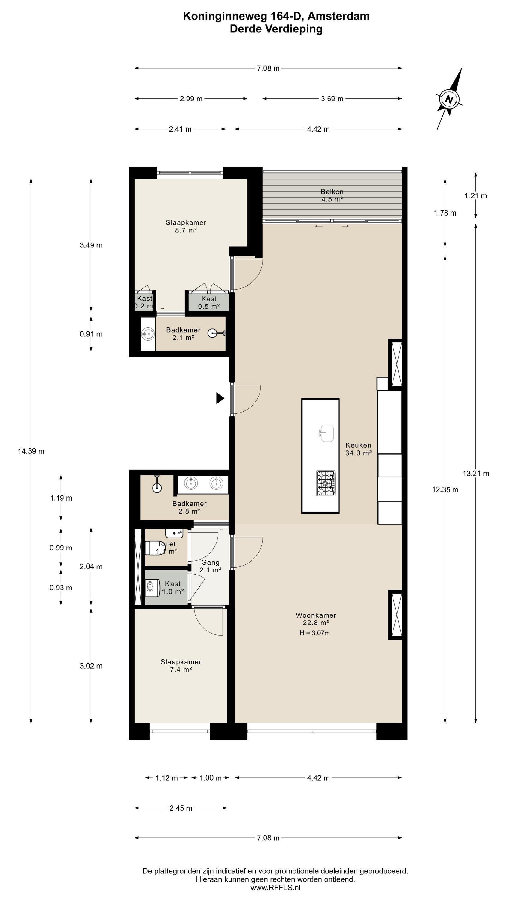
Located on the sought-after Koninginneweg in Amsterdam Oud-Zuid, this elegantly finished apartment of 87.7 m² is situated on the third floor. The property is distinguished by a generous open-plan living area, high ceilings and a quiet position with green views at the rear. With two bedrooms, two bathrooms and a covered balcony, this is a refined and comfortable home in close proximity to the Vondelpark and the Museum Quarter.

Accessibility & Location
The property is located in prestigious Amsterdam Oud-Zuid, on the elegant Koninginneweg. This green and spacious avenue has recently been fully redeveloped, with significant improvements to both its layout and traffic safety. Exclusive shopping streets such as the Cornelis Schuytstraat, Van Baerlestraat and P.C. Hooftstraat are all within walking distance in the chic Museum Quarter, while daily amenities can be found along the nearby Amstelveenseweg and Stadionweg, together with a variety of specialist shops. Schools, childcare facilities, sports amenities, and a wide range of cultural and leisure venues are located in the immediate vicinity. The Vondelpark is just a few minutes’ walk away. Public transport connections are excellent, with several tram and bus stops around the corner, and the A10 ring road can be reached within approximately five minutes by car. Parking is available via the municipal permit system.

Layout
This luxurious apartment is located on the third floor and is characterised by a spacious and open layout, with large windows at both the front and rear providing pleasant natural light throughout the day. The apartment is finished to a high standard and offers a comfortable living environment with a calm and refined atmosphere. The living room is situated at the front of the apartment and features a ceiling height of approximately 3.07 metres. Together with the kitchen and dining area, it forms one generous open-plan living space. The luxurious kitchen is centrally positioned within the apartment and is designed around a spacious cooking and sink island, fitted with an induction hob, sink and Quooker. In addition, the kitchen is equipped with a refrigerator, freezer, combi oven, climate cabinet and ample cupboard space. The island also functions as a comfortable bar area. At the rear of the apartment is the covered balcony, offering attractive views over the green gardens at the back and providing a peaceful outdoor space to relax. At the front of the apartment, the hallway provides access to the first bedroom, the separate toilet, the laundry/storage room and the first bathroom. This bathroom is fitted with a walk-in shower and a double washbasin with vanity unit. The second bedroom is located at the rear of the apartment and features fixed wardrobe space and an en-suite bathroom, equipped with a walk-in shower and a washbasin with vanity unit.

A luxurious and thoughtfully designed apartment with an open living area, high-quality finishes and a quietly situated balcony overlooking greenery.

Key Features
- Living area of 87.7 m² (measured in accordance with the NEN 2580 measurement guidelines);
- Two bedrooms;
- Two bathrooms;
- High ceilings;
- Energy label A;
- Underfloor heating throughout the entire apartment;
- Small homeowners’ association (VvE) under self-management;
- Service charges: €75 per month;
- Located on freehold land (no ground lease);
- Delivery in consultation.

This information has been compiled by us with due care. However, we accept no liability for any incompleteness, inaccuracies or otherwise, nor for the consequences thereof. All stated measurements and surface areas are indicative. The buyer has an independent duty to investigate all matters that may be of importance to him or her. With regard to this property, the real estate agent acts as advisor to the seller. We recommend engaging a qualified (NVM) purchasing agent to assist you throughout the buying process. Should you have specific requirements regarding the property, we advise you to communicate these in a timely manner to your purchasing agent and to conduct (or have conducted) your own investigations. If you do not engage a professional representative, you are deemed under the law to be sufficiently knowledgeable to oversee all matters of relevance.

Features

Transfer of ownership
Asking Price
€ 1.050.000 k.k.
Status
verkocht onder voorbehoud
Acceptance
in overleg
Construction
Kind of house
Tussenverdieping
Building type
appartement
Construction period
1913
Energy rating
A
Roof type
plat dak
Bedrooms
2
Bathrooms
2
Surface Areas And Volume
Living Area
88 m2
Other indoor space
0 m2
Exterior space attached to the buildinge
5 m2
Volume in cubic meters
335 m3
Facilities
Mechanische ventilatie
Tv kabel
In centrum
In woonwijk
Baerz & Co Property Brochure

Brochure

Videos

Floor Plans

Heeren Makelaars

Stadionweg 75
1077 SE Amsterdam

info@heerenmakelaars.nl
+31 204702255

www.heerenmakelaars.nl

Information / Viewing request

Eran Hausel profile image
Eran Hausel
Real estate agent

Buying a Luxury Property in Amsterdam

Amsterdam offers a cosmopolitan lifestyle defined by heritage, connectivity, and discreet luxury. Residents benefit from a robust international community, curated services, and vibrant culture. The city’s enduring appeal lies in its blend of history, sophistication, and progressive spirit.