Baerz & Co is een landelijk samenwerkingsverband van zorgvuldig geselecteerde boutique luxury makelaars. Samen vormen wij één netwerk, met één gedeeld aanbod. De woningen die u op onze website ziet, zijn afkomstig van alle aangesloten kantoren binnen Baerz & Co. Daardoor is niet ieder object rechtstreeks door ons kantoor in verkoop, maar door een gespecialiseerde collega binnen ons netwerk. Heeft u een woning gevonden die u aanspreekt en wilt u meer informatie? Dan brengen wij u graag persoonlijk in contact met de betreffende verkoopmakelaar, zodat u direct en zorgvuldig wordt begeleid.

AMSTERDAM
Korte Ouderkerkerdijk 1 P 3 - 1096 AC
Netherlands

Eran Hausel profile image
Eran Hausel
Real estate agent
€1,850,000 k.k.
Living Area
157m2
Plot Size
2974m2
Bedrooms
3

Description

Korte Ouderkerkerdijk 1 P3, 1096 AC AMSTERDAM

A modern apartment of approximately 157 m², located on the 13th floor. The property features three bedrooms, a covered balcony, an A++ energy label, an external storage unit, and a private parking space equipped with a charging station, as well as truly spectacular views over the city.

The HAUT building was named the Best Building in the Netherlands in 2023.

Accessibility:

HAUT is a residential building (21 storeys in total) located along the River Amstel in Amsterdam, situated between Amsterdam South, near Amstel Station and the Rijnstraat shopping area for daily necessities, as well as the Rivierenbuurt and Watergraafsmeer districts. In the immediate vicinity of HAUT, you will find an excellent selection of restaurants and cafés, including L’Osteria, Rijssel, George Marina, The Lobby and Thuis aan de Amstel.

The location offers excellent accessibility by both public transport (bus and tram stops as well as a nearby metro station) and major road connections (A2 and A10), making it ideal for both the active city resident and those who enjoy nature. The surrounding green parks and waterside areas provide ample opportunities for relaxation and recreation close to home.

Layout

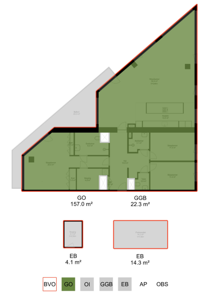
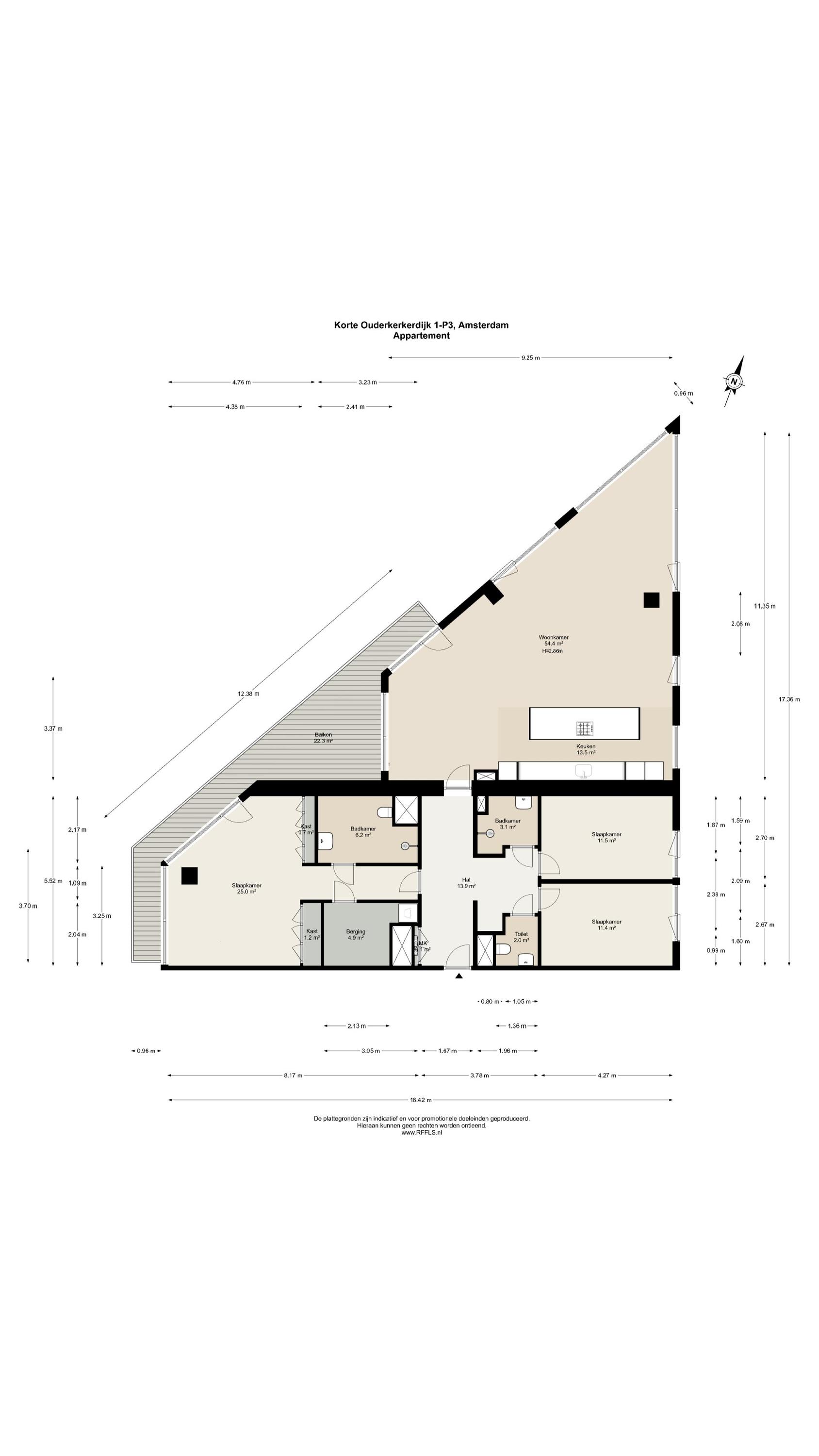
Thirteenth floor:
The apartment is accessed via the shared entrance, either by lift or staircase. Upon entering, you arrive in a spacious hallway that provides access to nearly all rooms of the property. From here, you reach the generous living room with open kitchen, three bedrooms, a bathroom, and a separate toilet. The living room is distinguished by its unique triangular layout and the extensive floor-to-ceiling windows along the façade, which ensure excellent natural light and offer unobstructed views towards the River Amstel. The space is generously proportioned and easily accommodates a comfortable seating area and a large dining table. From the living room, there is access to the spacious, covered balconyan inviting outdoor area with beautiful views over the city and the water. The open kitchen is centrally positioned within the living area and designed in a modern, sleek style. It is equipped with high-quality built-in appliances, including an induction cooktop with integrated extraction, a Quooker, a climate-controlled wine cabinet, a fridge/freezer combination, a dishwasher, and two Gaggenau ovens. The apartment features three well-proportioned bedrooms. The largest bedroom benefits from an en-suite bathroom, luxuriously finished with a washbasin and vanity unit, walk-in shower, and toilet. The second bathroom is accessible from the hallway and includes a walk-in shower, double washbasin, and a light, contemporary finish. In addition, there is a separate toilet.

Storage & parking:
The property includes an external storage unit of approximately 4.1 m² and a private parking space in the underground parking garage.
Key features
- Apartment right of approximately 157 m² (measured in accordance with NEN 2580; report available);
- Covered balcony of approximately 22 m² (west-facing), offering an inviting outdoor space;
- Three bedrooms, including one with a luxurious en-suite bathroom;
- Modern kitchen equipped with high-end built-in appliances;
- Energy label A++;
- External storage unit of approximately 4 m²;
- Ownership (apartment and storage unit) subject to ground lease. The annual ground rent amounts to €3,922.00, indexed annually until 15 December 2067;
- Ownership (parking space) subject to ground lease. The annual ground rent amounts to €40.00, indexed annually until 15 December 2067;
- Active homeowners’ association (VvE), professionally managed; monthly service charges of €676.00;
- Private parking space with charging station;
- Covered bicycle storage;
- Located in HAUT, the tallest hybrid timber building in the Netherlands;
- An innovative building awarded the highest attainable sustainability rating;
- Transfer in consultation; quick delivery possible.

This information has been compiled by us with due care. However, we accept no liability for any incompleteness, inaccuracies, or otherwise, nor for the consequences thereof. All stated measurements and surface areas are indicative. The buyer has a duty to conduct their own investigation into all matters that are of importance to them. With regard to this property, the broker acts as advisor to the seller. We recommend that you engage a qualified (NVM) estate agent to assist you during the purchasing process. Should you have specific requirements in relation to the property, we advise that you communicate these in a timely manner to your purchasing agent and conduct, or have conducted, independent investigations accordingly. If you choose not to engage a professional representative, you are deemed under the law to be sufficiently knowledgeable to assess all matters of relevance.

Features

Transfer of ownership
Asking Price
€ 1.850.000 k.k.
Status
verkocht onder voorbehoud
Acceptance
in overleg
Construction
Kind of house
Bovenwoning
Building type
appartement
Construction period
2021
Energy rating
A++
Roof type
plat dak
Bedrooms
3
Bathrooms
2
Surface Areas And Volume
Living Area
157 m2
Other indoor space
0 m2
Exterior space attached to the buildinge
22 m2
External storage space
18 m2
Volume in cubic meters
623 m3
Plot Size
2974 m2
Facilities
Tv kabel
Balansventilatie
Aan water
Vrij uitzicht
Baerz & Co Property Brochure

Brochure

Videos

Floor Plans

Heeren Makelaars

Stadionweg 75
1077 SE Amsterdam

info@heerenmakelaars.nl
+31 204702255

www.heerenmakelaars.nl

Information / Viewing request

Eran Hausel profile image
Eran Hausel
Real estate agent

Buying a Luxury Property in Amsterdam

Amsterdam offers a cosmopolitan lifestyle defined by heritage, connectivity, and discreet luxury. Residents benefit from a robust international community, curated services, and vibrant culture. The city’s enduring appeal lies in its blend of history, sophistication, and progressive spirit.