Baerz & Co is een landelijk samenwerkingsverband van zorgvuldig geselecteerde boutique luxury makelaars. Samen vormen wij één netwerk, met één gedeeld aanbod. De woningen die u op onze website ziet, zijn afkomstig van alle aangesloten kantoren binnen Baerz & Co. Daardoor is niet ieder object rechtstreeks door ons kantoor in verkoop, maar door een gespecialiseerde collega binnen ons netwerk. Heeft u een woning gevonden die u aanspreekt en wilt u meer informatie? Dan brengen wij u graag persoonlijk in contact met de betreffende verkoopmakelaar, zodat u direct en zorgvuldig wordt begeleid.

AMSTERDAM
Van Breestraat 45 - 1071 ZG
Netherlands

Eran Hausel profile image
Eran Hausel
Real estate agent
€4,250,000 k.k.
Living Area
291m2
Plot Size
115m2
Bedrooms
4

Description

Van Breestraat 45, 1071 ZG AMSTERDAM

Situated on one of the most distinguished stretches of the Van Breestraat, in the renowned Museum District, we proudly present this generous family residence of approximately 291 m², spread across five full-fledged living floors. In 2012, the property was completely renovated under the direction of Dick van Gameren, a prominent and award-winning Dutch architect. His signature is unmistakably reflected in the harmonious blend of spatial quality, sustainability, and contemporary comfort, with playful natural light, serene yet expansive rooms, and a warm, personal atmosphere a home in which you will immediately feel at ease. The house is ideally located just moments away from the P.C. Hooftstraat, the Vondelpark and the Museumplein. This family home features four bedrooms, a sunny south-facing garden and several balconies.

Location & Accessibility
The property is superbly located in Amsterdam Oud-Zuid, with every convenience within easy reach. A wide range of shops, specialty stores and boutiques can be found nearby, particularly along the Cornelis Schuytstraat, the P.C. Hooftstraat and the Beethovenstraat. For art and culture, the Museumplein and the Concertgebouw are within walking distance. The Vondelpark, ideal for a stroll, exercise or recreation, is also just a short walk away. Every Saturday, a charming farmers’ market is held at the Jacob Obrechtplein. The street itself is spacious, quiet and green, offering a pleasant, almost village-like atmosphere right in the heart of the city. Well-regarded primary, secondary and international schools are located close by. Accessibility is excellent. Public transport options are plentiful, with tram and bus stops only a short walk from the property. Major arterial roads can be easily reached by car. Parking is available on public streets through a permit system, and there is almost always ample space directly in front of the house.

Layout
Upon entering the residence, the striking play of daylight immediately captures your attention. A large skylight at the top of the house allows natural light to cascade through the central staircase and spacious atrium, creating an open and airy atmosphere on every level.

Ground Floor
Through the entrance, you arrive in the generous hallway, where the tone of the house is set by the high ceilings and the beautiful original details preserved throughout much of the property. From here, you access the expansive kitchen-diner at the rear. This bespoke kitchen has been meticulously designed and equipped with high-end appliances, including two sinks—one fitted with a Quooker— a five-burner gas hob with extractor fan, separate oven, microwave, full-size refrigerator, freezer, dishwasher, and a warming drawer, ideal for preparing larger dinners. A fireplace adds warmth and charm to the space.

At the centre of the room sits a substantial island with an inviting bar arrangement, perfect for both casual dining and entertaining. Adjacent to the kitchen is a practical pantry suitable for storing provisions and kitchen equipment. French doors open onto the covered terrace and the sunny south-facing garden. The garden acts as a natural extension of the kitchen, effectively doubling the living space during warmer months. Built-in cabinets and a guest toilet are also present on this floor. The contemporary finish of the kitchen contrasts elegantly with the more classical elements found on the upper levels.

First Floor
The first floor features an impressive living level with a spacious, full-width living room. Stunning ceiling ornaments and a fireplace lend this room a warm and stately character. French doors at the front provide access to the balcony. Adjacent is a study, ideal for working from home or studying. A separate toilet is also located on this floor. The central atrium ensures abundant natural light, creating an inviting and open ambiance.

Second Floor
The second floor comprises two well-proportioned bedrooms. The master bedroom, located at the rear, benefits from built-in wardrobes, French doors to the balcony, and air conditioning. The second bedroom is situated at the front and also has access to a balcony. Centrally positioned is the luxurious bathroom, equipped with a bathtub, walk-in shower, and double washbasin with vanity unit. The original ceiling ornaments have been retained here as well.

Third Floor
The third floor offers two spacious rooms: one at the front and one at the rear, each fitted with air conditioning. These rooms can easily serve as bedrooms, offices, guest accommodation, or hobby spaces, depending on your needs. This floor also includes a second bathroom with a walk-in shower and double washbasin, a separate toilet, and a stylish gallery overlooking the central atrium.

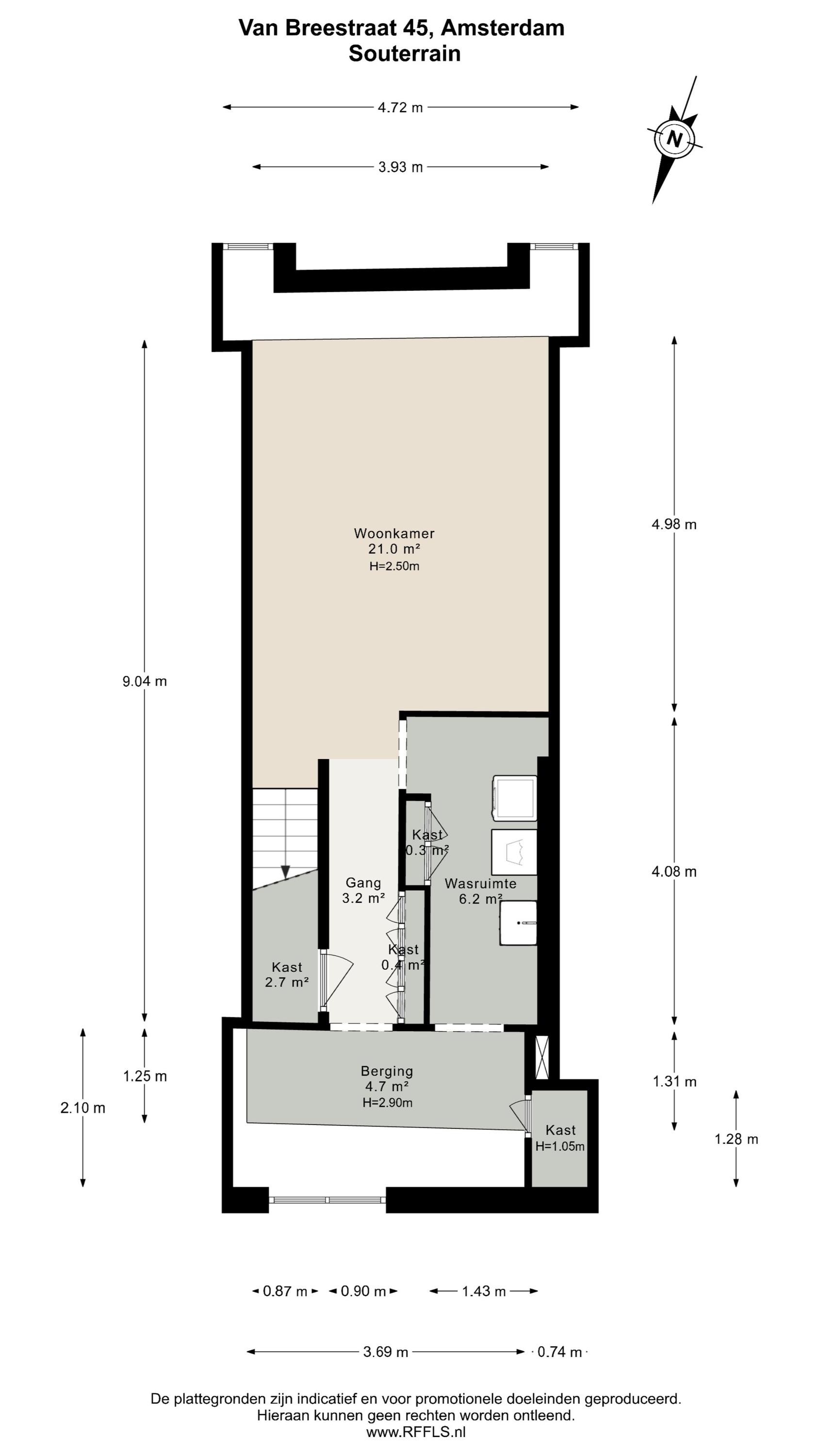
Basement
The basement level features a large multifunctional room, a laundry room with washing machine and dryer connections, and ample storage space. A smart laundry chute ensures that washing from the upper floors arrives directly in the laundry room an ingenious solution for keeping the house tidy. With good ceiling height and natural daylight, this level is suitable for various uses, including a playroom, gym, office, or even an additional full living floor should sanitary facilities be added.

Special Features & Comfort
During the extensive 2012 renovation, great emphasis was placed on future-proofing and comfort. The property is fitted with high-quality sound insulation, allowing for peaceful living despite the central location. A built-in lift shaft is currently used as a storage closet but can be converted into a passenger lift with minimal modifications, enabling the residence to be made suitable for all stages of life. The house is fully wired for data, internet, telephony and television. Programmable switches provide efficient control over lighting and energy usage according to personal preferences. Among the features is an ‘all-off’ function, allowing you to switch off all lighting throughout the house at the touch of a button.

Key features
- Living area of 290.9 m² (measured in accordance with NEN2580; report available);
- South-facing rear garden of 40.2 m² (measured in accordance with NEN2580; report available);
- Entire property spread across five full floors;
- Family home with four bedrooms;
- Completely renovated under architectural supervision in 2012 by Dick van Gameren;
- Exceptional natural light throughout the house via a large central skylight and atrium;
- High-grade sound insulation;
- Preparations in place for a passenger lift;
- Advanced cabling throughout the property for data, internet, telephone and television;
- Programmable switches and ‘all-off’ lighting functions;
- Smart laundry chute to the basement;
- Several balconies;
- Air conditioning in various bedrooms;
- Freehold property, no ground lease;
- Energy label A;
- Prime residential location in Amsterdam Oud-Zuid;
- Delivery in consultation.

This information has been compiled by us with due care. However, we accept no liability for any incompleteness, inaccuracies or otherwise, nor for the consequences thereof. All stated measurements and surface areas are indicative. The purchaser is responsible for conducting their own investigation into all matters that may be relevant to them. With regard to this property, the estate agent acts as the advisor to the seller. We recommend that you engage a qualified (NVM) real estate agent to assist you in the purchase process. Should you have any specific requirements regarding the property, we advise you to communicate these to your purchasing agent in good time and to conduct (or have conducted) independent research into such matters. If you do not engage a professional representative, you shall be deemed sufficiently expert under the law to oversee all matters of importance yourself. The NVM conditions apply.

Features

Solar panels
Transfer of ownership
Asking Price
€ 4.250.000 k.k.
Status
beschikbaar
Acceptance
in overleg
Construction
Kind of house
Eengezinswoning
Building type
tussenwoning
Construction period
1900
Energy rating
A
Roof type
plat dak
Bedrooms
4
Bathrooms
2
Surface Areas And Volume
Living Area
291 m2
Other indoor space
0 m2
Exterior space attached to the buildinge
19 m2
Volume in cubic meters
1183 m3
Plot Size
115 m2
Facilities
Mechanische ventilatie
Domotica
Zonnepanelen
Aan rustige weg
In woonwijk
Baerz & Co Property Brochure

Brochure

Videos

Virtual Tours

VIRTUAL TOUR
Virtual Tour Van Breestraat 45

Heeren Makelaars

Stadionweg 75
1077 SE Amsterdam

info@heerenmakelaars.nl
+31 204702255

www.heerenmakelaars.nl

Information / Viewing request

Eran Hausel profile image
Eran Hausel
Real estate agent

Buying a Luxury Property in Amsterdam

Amsterdam offers a cosmopolitan lifestyle defined by heritage, connectivity, and discreet luxury. Residents benefit from a robust international community, curated services, and vibrant culture. The city’s enduring appeal lies in its blend of history, sophistication, and progressive spirit.