Ruime 2-onder-1-kapwoning gelegen aan een rustige laan met brede singel en vrij uitzicht!
Deze onder architectuur gebouwde woning in jaren ’30-stijl beschikt over een garage, twee parkeerplaatsen op eigen terrein, een balkon en maar liefst vijf slaapkamers. De woning is gelegen in een rustige en kindvriendelijke wijk, met in de directe omgeving diverse speelpleintjes, basisscholen, kinderdagverblijven en de bibliotheek. Het gezellige centrum van Bergschenhoek, met een gevarieerd aanbod aan winkels, speciaalzaken, supermarkten en restaurants, bevindt zich op circa vijf minuten loopafstand.
Op korte fietsafstand zijn diverse sport- en recreatievoorzieningen te vinden, waaronder park De Leeuwenkuil, zwembad De Windas en het Annie M.G. Schmidtpark. Daarnaast is de woning gunstig gelegen ten opzichte van het openbaar vervoer (bus en RandstadRail) en de uitvalswegen (A12, A13, N209, N470 en N471) richting de grote steden.
Kortom: een heerlijk gezinshuis met alle voorzieningen binnen handbereik!
Indeling
Begane grond:
Voortuin met parkeergelegenheid voor twee auto’s op eigen terrein en toegang tot de garage.
Entree/hal met meterkast, toilet, trapkast, trap naar de eerste verdieping en toegang tot de woonkamer.
De ruime woonkamer aan de voorzijde is voorzien van een gezellige gashaard, een erker en een fraaie laminaatvloer.
De open leefkeuken bevindt zich aan de achterzijde en is uitgerust met diverse inbouwapparatuur, waaronder een gasfornuis, afzuigkap, magnetron, oven, vaatwasser en koelkast.
Aangrenzend aan de keuken bevindt zich een multifunctionele ruimte, ideaal te gebruiken als speelkamer, chillhoek of werkkamer. Vanuit deze ruimte is er toegang tot zowel de garage als de tuin.
Tuin:
De fraai aangelegde achtertuin is gelegen op het noordoosten. Dankzij de slimme plaatsing van de terrassen kun je hier de hele dag van de zon genieten. De tuin is bereikbaar vanuit zowel de woonkamer als de multifunctionele ruimte en is voorzien van een elektrisch zonnescherm en een heater.
Eerste verdieping:
Slaapkamer 1, gelegen aan de voorzijde.
Slaapkamer 2,ruime slaapkamer met schuifpui naar een zonnig balkon met uitzicht over de singel.
Slaapkamer 3, gelegen aan de achterzijde.
De badkamer is uitgerust met een ligbad, douche, toilet en twee wastafels.
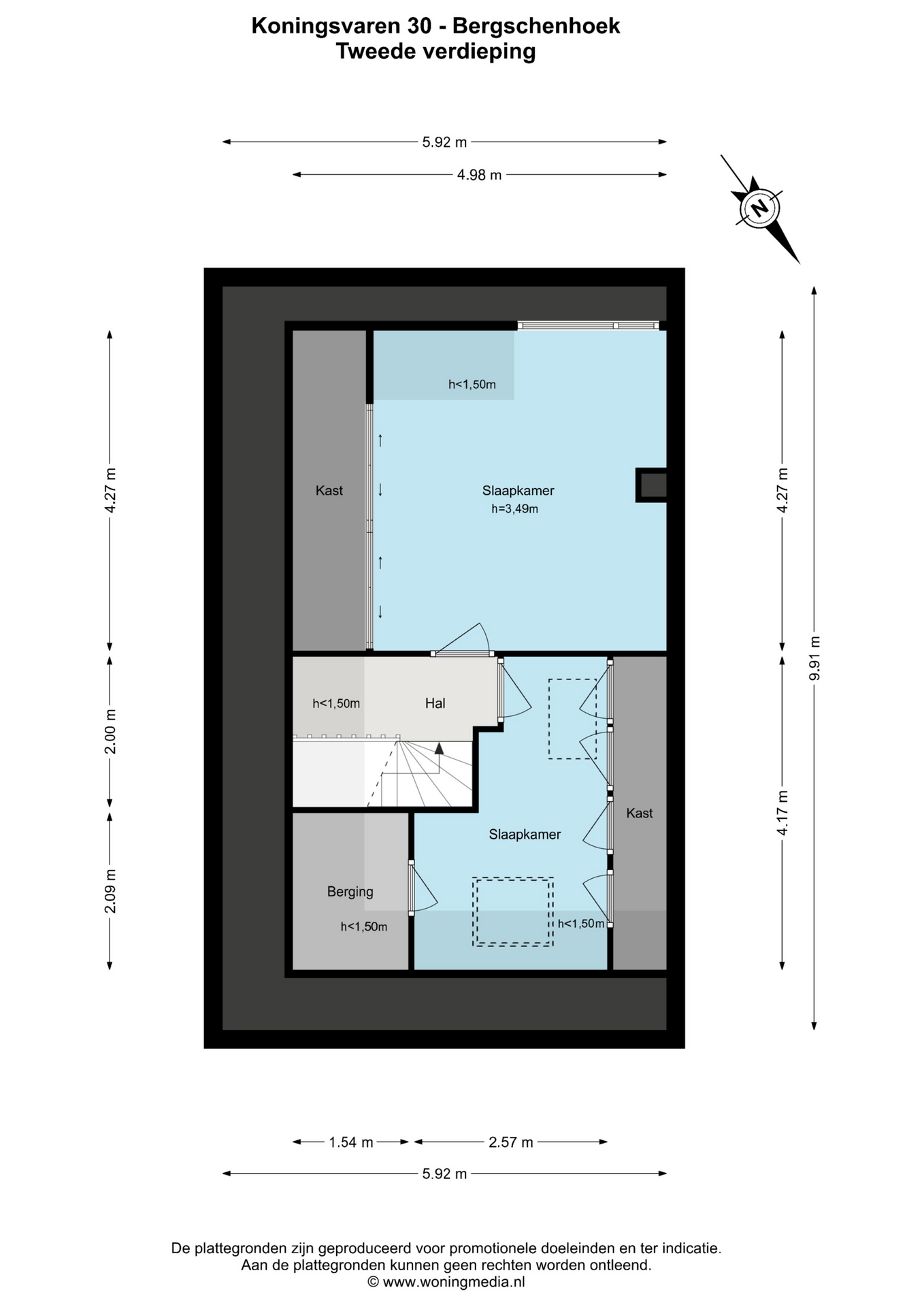
Tweede verdieping:
De ruime vierde slaapkamer aan de voorzijde beschikt over vaste kasten, een dakkapel en een laminaatvloer.
Slaapkamer 5, met aansluitingen voor wasmachine en droger, een Velux dakraam en toegang tot de vliering. Daarnaast biedt deze ruimte de mogelijkheid om een tweede badkamer te realiseren.
Bijzonderheden:
- Bouwjaar 1995, woonoppervlakte ca. 159 m2
- Twee parkeerplaatsen op eigen terrein
- Multifunctionele ruimte op de begane grond
- Scholen, kinderopvang, speelveldjes en winkels in de directe omgeving
- Oplevering in overleg, conform Lijst van Zaken.
Wij nodigen je van harte uit om deze leuke woning te komen bekijken.
Alle verstrekte informatie moet beschouwd worden als een uitnodiging tot het doen van een bod of om in onderhandeling te treden. De teksten en impressies zijn bedoeld om een goede indruk te geven van het object. Aan de inhoud ervan is de grootst mogelijke zorg besteed. Desondanks is alle informatie nadrukkelijk onder voorbehoud. Er kunnen geen rechten worden ontleend aan deze woninginformatie.
Koopovereenkomst pas rechtsgeldig na ondertekening:
Een mondelinge overeenstemming tussen de particuliere verkoper en de particuliere koper is niet rechtsgeldig. Met andere woorden: er is geen koop. Er is pas sprake van een rechtsgeldige koop als de particuliere verkoper en de particuliere koper de koopovereenkomst hebben ondertekend. Dit vloeit voort uit artikel 7:2 Burgerlijk Wetboek. Een bevestiging van de mondelinge overeenstemming per e-mail of een toegestuurd concept van de koopovereenkomst wordt overigens niet gezien als een 'ondertekende koopovereenkomst'.
Toelichtingsclausule Meetinstructie:
De woning is conform de Branchebrede Meetinstructie (BBMI) opgemeten. De Meetinstructie is bedoeld om een meer eenduidige manier van meten toe te passen voor het geven van een indicatie van de gebruiksoppervlakte. De Meetinstructie sluit verschillen in meetuitkomsten niet volledig uit, door bijvoorbeeld interpretatieverschillen, afrondingen of beperkingen bij het uitvoeren van de meting.
Wij zijn de makelaar van verkoper. Wij adviseren je jouw eigen makelaar mee te nemen voor jouw belangenbehartiging bij de aankoop van jouw toekomstige huis!