Ons kantoor is lid van Baerz & Co Luxury Homes; een internationaal platform dat exclusieve woningmakelaars met elkaar verbindt. Neem contact op met ons secretariaat voor meer informatie over het landelijke aanbod, waarvan u hieronder een selectie kunt bekijken.

Woonboerderij for sale in HUIZEN

HUIZEN E. Ludenstraat 3 - 1271 PS The Netherlands


Marquiette Schaap profile image
Marquiette Schaap
Real Estate Agent
+31 (0)35 76 35 424
hello@artoflivingbymar.com

Art of Living by Marquiette & Partners

Living area
346m2
Plot size
1010m2
Bedrooms
6

Description

Situated in Huizen, this unique farmhouse offers a warm and inviting atmosphere. Fully renovated with care and craftsmanship in 2022 and 2023, it beautifully combines historic charm with modern comfort, featuring 346 m² of living space on a plot of over 1,000 m².

Ground Floor
The spacious entrance hall, with a partial glass roof and mezzanine, immediately creates a sense of light and openness. At the heart of the home is the modern kitchen—a place to gather—with a large cooking island and bar, adjacent to the dining area with a gas fireplace. Large windows and high ceilings add a spectacular sense of space and natural light. From the kitchen, you flow into the living room, complete with an open fireplace and sliding doors to the garden. The ground floor also includes a practical utility/laundry room with a laundry chute, a home office, and an additional room ideal as a playroom or guest bedroom.

First Floor
A beautiful staircase leads to the first floor, where the luxurious master suite awaits, featuring custom closets and a bathroom softly lit by natural light through a glass roof. There are also four spacious and distinctive children’s rooms, each with its own character—from cozy alcoves to loft-style sleeping areas. A second bathroom and a separate toilet complete the floor.

Outdoor Living
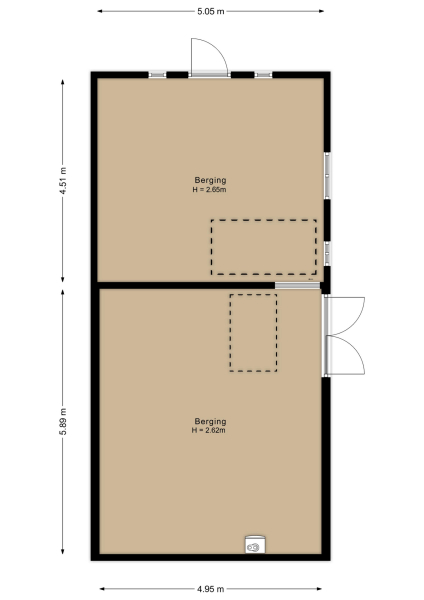
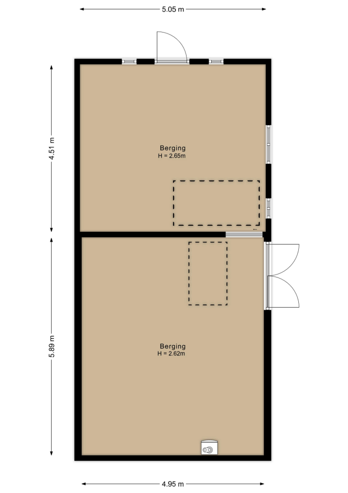
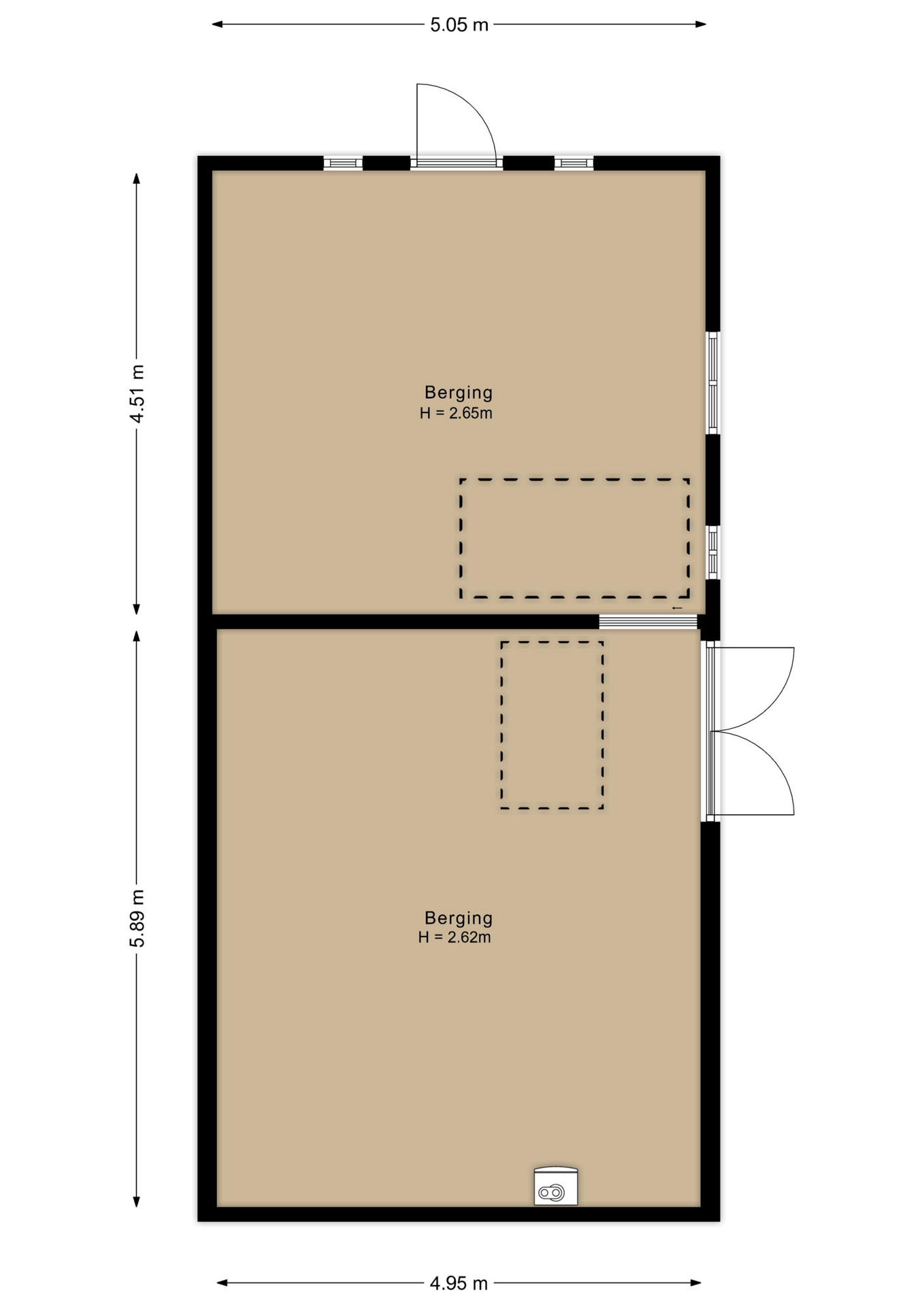
The garden is thoughtfully landscaped, with multiple terraces. The former hay barn and a versatile 60 m² outbuilding offer plenty of possibilities—think studio, office, or even a granny annex. The thatched roof, tall windows, and warm design make this home not only sustainable (Energy Label A) but also timelessly charming.

The Surroundings
Huizen is a village with plenty to offer. Sports enthusiasts can choose from hockey, soccer, tennis, padel, or fitness, and in summer, there’s the Sijsjesberg outdoor swimming pool. For water lovers, the Gooimeer lake with its marinas is just around the corner. Nature enthusiasts can walk or cycle into the Goois Nature Reserve. And yet, everything remains local and accessible—schools and shops are within walking or cycling distance.

This is a family home at its finest: atmospheric, spacious, bright, and renovated with high-quality materials. In short, it’s more than worth a visit.

This farmhouse is for sale subject to owner approval.

Features

Transfer of ownership
price
€ 2.750.000 k.k.
Status
beschikbaar
Acceptance
in overleg
Construction
Kind of house
Woonboerderij
Building type
vrijstaande woning
Construction period
1905
Energy rating
A
Roof type
zadeldak
Bedrooms
6
Bathrooms
3
Surface Areas And Volume
Living area
346 m2
Other indoor space
30 m2
External storage space
53 m2
Volume in cubic meters
1472 m3
Plot size
1010 m2
facilities
Alarminstallatie
Schuifpui
Dakraam
Aan rustige weg
In centrum
Beschutte ligging
Baerz & Co Property Brochure

Brochure

Information / Viewing request

Videos

Photos