Baerz & Co is a nationwide partnership of carefully selected boutique luxury real estate agents. Together, we form a single network with a shared portfolio. The properties you see on our website come from all affiliated offices within Baerz & Co. As a result, not every property is sold directly by our office, but by a specialized colleague within our network. Have you found a property that appeals to you and would you like more information? We will be happy to put you in touch with the relevant sales agent, so that you receive direct and careful guidance.

KOSTRENA
Croatia

Mateja Funtek Derča profile image
Mateja Funtek Derča
Personal Property Advisor
€850,000
Living Area
251m2
Plot Size
N/A
Bedrooms
5

Description

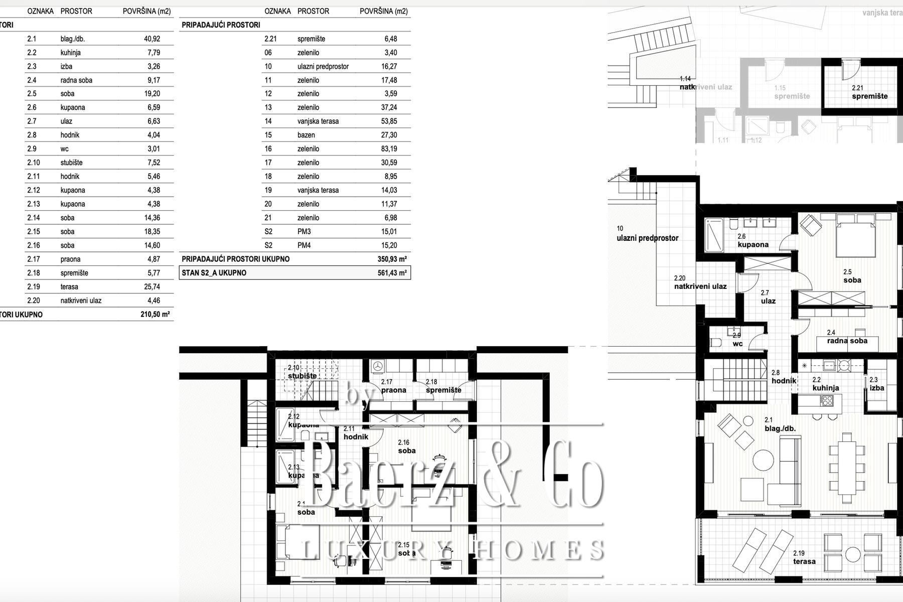
This apartment Kostrena unfolds across 251.58 m² in an elegant new building, offering a rare blend of contemporary architecture and calm coastal living. Spanning two levels, the residence reveals five discreetly structured bedrooms and five bathrooms, with each space shaped for light, privacy, and open connection to the outdoors. The main living area and dining space, totaling 40.92 m², merges seamlessly with a modern 7.79 m² kitchen, creating the heart of the home for gatherings and quiet evenings alike.

Each bedroom offers refined proportions, ranging from 9.17 m² to 19.20 m², and is complemented by a suite of functional spaces, including a walk-in wardrobe, laundry, pantry, and dedicated storage. Three bathrooms and a guest toilet offer comfort for both family and visitors. Outside, a covered terrace of 25.74 m² and two further terraces flow into a landscaped garden with a private swimming pool, inviting relaxation and silent views across the shimmering Kvarner coast.

The quality of construction is intrinsic, from ALU BEN aluminum joinery and security doors to underfloor heating with a heat pump and a smart home system ensuring thoughtful control of temperature and ambience throughout. Two outdoor parking spaces provide convenience, while a separate 6.48 m² storage solution completes the practical offering.

The property’s setting, just 1,118 meters from the shore, promises swift access to the sea and promenade, enhancing everyday living in Kostrena. Completion is scheduled for 2026. Sold turnkey, this modern apartment in Kostrena for sale combines understated luxury, advanced technology, and proximity to natural beauty, making it an ideal choice for those who value space, comfort, and the enduring allure of the Adriatic.

Explore Kostrena with Baerz, Your Trusted Personal Property Finder & Advisor

The upper tier of the Kostrena property market is nuanced, requiring a combination of strategic sourcing and discreet negotiation. Local advisors offer invaluable access to off-market residences and can guide clients through regulatory details and relationship-based transactions. Their expertise ensures buyers and sellers achieve optimal terms, protecting assets and reputations throughout the process.

Avoid common pitfalls

International buyers often waste valuable time on duplicate, outdated or misleading online listings, especially since nearly 30% of luxury homes never appear on the public market. Seller’s agents represent the seller’s interests, not the buyer’s. Even requesting information about a property can result in a seller’s agent registering you as their “client” without your consent.
With Baerz Property Finders & Advisors, you avoid all these pitfalls entirely. We work solely on your behalf, offering independent representation, clear guidance and access to all available properties, including off-market opportunities that others never get to see.

Interested in a Personal Property Advisor?

We show you all available homes in one place. Feel free to contact us to learn how we can meet your needs and protect your interests exclusively.

Features

Transfer of ownership
Asking Price
€ 850.000
Reference
927139
EUR
Construction
Kind of house
apartment
Bedrooms
5
Bathrooms
5
Surface Areas And Volume
Living Area
251 m2
Plot Size
0 m2
Baerz & Co Property Brochure

Brochure

Videos

Information / Viewing request

Mateja Funtek Derča profile image
Mateja Funtek Derča
Personal Property Advisor

Buying a Luxury Property in Kostrena

Kostrena delivers an exclusive coastal lifestyle, balancing privacy, culture, and access to world-class services. Its international appeal is underscored by strong community ties and refined amenities tailored to the needs of astute global buyers.