Baerz & Co is a nationwide partnership of carefully selected boutique luxury real estate agents. Together, we form a single network with a shared portfolio. The properties you see on our website come from all affiliated offices within Baerz & Co. As a result, not every property is sold directly by our office, but by a specialized colleague within our network. Have you found a property that appeals to you and would you like more information? We will be happy to put you in touch with the relevant sales agent, so that you receive direct and careful guidance.

SOTOGRANDE
Spain

Charles Gubbins profile image
Charles Gubbins
Personal Property Advisor
€5,850,000
Living Area
975m2
Plot Size
2836m2
Bedrooms
5

Description

Villa Sotogrande with Panoramic Sea Views is a newly constructed 975 m² residence, thoughtfully positioned on a substantial 2,836 m² plot. This property looks south over La Reserva, framing uninterrupted vistas toward the Mediterranean. The architecture is contemporary yet restrained, articulated through generous living spaces and materials that catch the Andalusian light.

Five en-suite bedrooms embody comfort and privacy, complemented by a study area, a snug or library, and expansive sitting and dining rooms. The fully fitted kitchen connects fluidly to both covered and open terraces, creating seamless transitions between indoors and out. Underfloor heating, double glazing, and air conditioning ensure year-round ease. Security is assured within a gated community featuring 24-hour service.

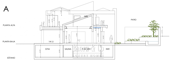
The basement is designed for flexibility with space for a gym, a media or games room, storage, and garage parking for three cars. South-facing terraces totaling 112.26 m² invite leisurely afternoons overlooking the pool, mature gardens, and panoramic views to the sea. Proximity to acclaimed international schools, golf courses, the beach, and essential amenities positions this luxury villa for sale in Sotogrande as both a refined family haven and a tranquil holiday destination.

Explore Sotogrande with Baerz, Your Trusted Personal Property Finder & Advisor

Strategic property acquisition in Sotogrande requires nuanced understanding of local micro-markets, supply cycles, and sought-after enclaves. Personal advisors provide access to discreet off-market opportunities and negotiate deals with cultural fluency. Their expertise ensures meticulous due diligence, correct assessment of long-term value, and alignment with clients’ family or investment needs. They are trusted partners in navigating complexity and safeguarding interests.

Avoid common pitfalls

International buyers often waste valuable time on duplicate, outdated or misleading online listings, especially since nearly 30% of luxury homes never appear on the public market. Seller’s agents represent the seller’s interests, not the buyer’s. Even requesting information about a property can result in a seller’s agent registering you as their “client” without your consent.
With Baerz Property Finders & Advisors, you avoid all these pitfalls entirely. We work solely on your behalf, offering independent representation, clear guidance and access to all available properties, including off-market opportunities that others never get to see.

Interested in a Personal Property Advisor?

We show you all available homes in one place. Feel free to contact us to learn how we can meet your needs and protect your interests exclusively.

Features

Swimming pool
Alarm system
Air conditioning
Garage
Transfer of ownership
Asking Price
€ 5.850.000
Reference
NP01543
NOL
Construction
Kind of house
Villa
Rooms
N/A
Bedrooms
5
Bathrooms
5
Surface Areas And Volume
Living Area
975 m2
Plot Size
2836 m2
Facilities
Pool
South orientation
112.26 m² terrace
Private garage
3 parking spaces
Private garden
Private pool
Air conditioning
Fully fitted kitchen
Fireplace
Basement
Alarm
Double glazing
Brand new
Security service 24h
Guest toilet
Private terrace
Study room
Sea view
Underfloor heating (throughout)
Automatic irrigation system
Covered terrace
Gated community
Garden view
Pool view
Panoramic view
Close to sea / beach
Close to golf
Uncovered terrace
Games Room
Glass Doors
Ceiling heating system
Close to shops
Close to schools
Inside Golf Resort
Internet - Fibre optic
Baerz & Co Property Brochure

Brochure

Videos

Information / Viewing request

Charles Gubbins profile image
Charles Gubbins
Personal Property Advisor

Buying a Luxury Property in Sotogrande

Sotogrande presents a cosmopolitan community offering refined amenities, secure living, and effortless access to global destinations. Residents enjoy a vibrant lifestyle, tailored services, and a diverse cultural and sporting scene, underscoring Sotogrande’s enduring international appeal.